Menu
menu
Home
会長挨拶
開催概要
日程表・プログラム
演題募集
参加者へのご案内
登壇者へのご案内
託児室のご案内
JEDブースのお知らせ
会場案内
関連リンク
お問い合わせ
日本消化器病学会中国支部
第42回教育講演会
市民公開講座
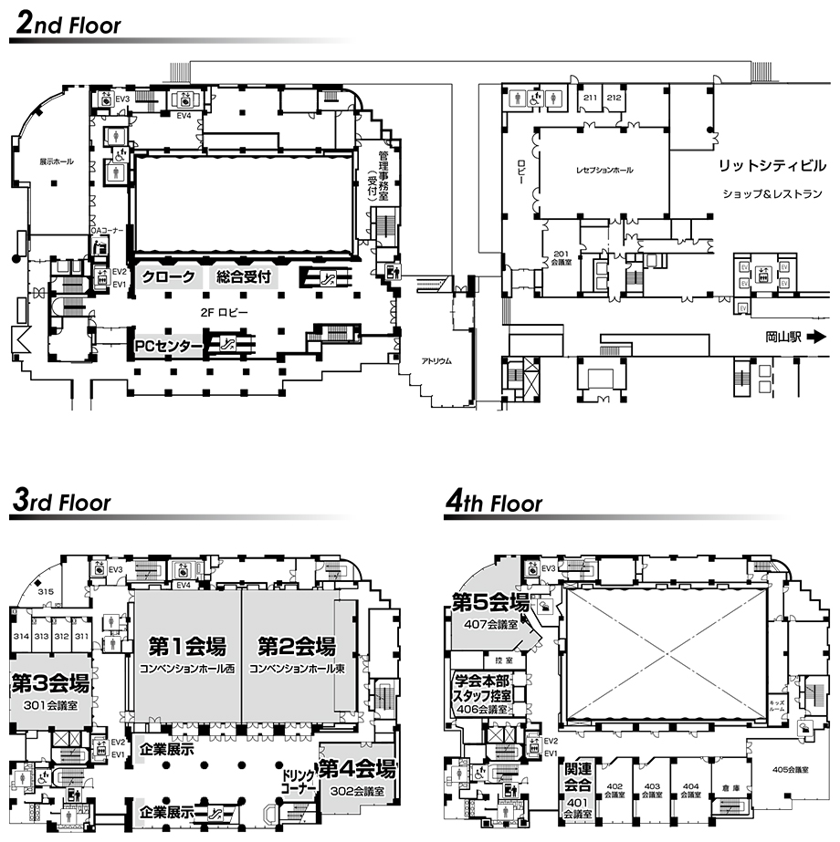
会場案内
岡山コンベンションセンター
open_in_new
〒700-0024 岡山県岡山市北区駅元町14−1
phone
Tel:
086-214-1000
会場案内図
play_arrow